FZ2653 - Private Apartment

Location
FZ2653 - Private Apartment
Type
Residential
Year
2024
State
Complete
Team
Filippo Soffrizzi/Valentina Scarton
Photo
Francesco Bianchi Photo

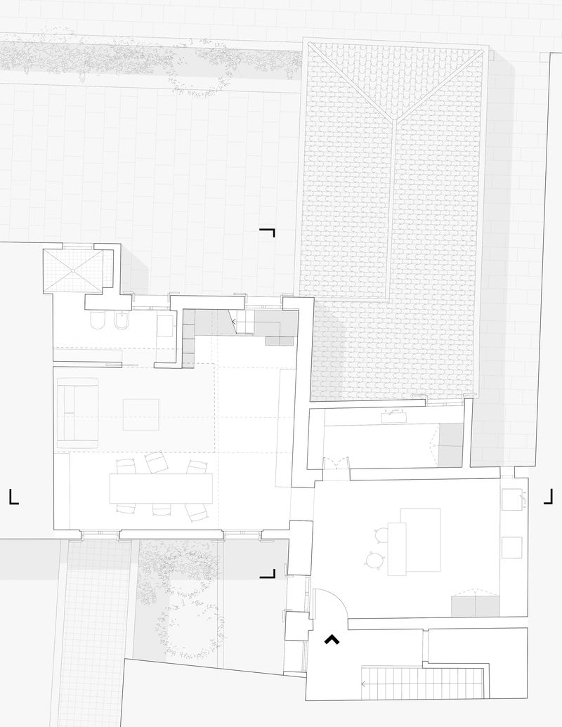
FZ2653 is a project for an apartment located in the historic centre of Venice, within a sequence of 16th- and 17th-century buildings.

The dwelling is divided between two distinct but connected structures, characterised by different proportions, heights and finishes.
The first, smaller in size and marked by reduced lighting, contains the entrance and kitchen; the second, a large, very bright double-height space, houses the living area, where nineteenth-century frescoes emerged during the demolition phase.

The project interprets this duality through the insertion of a metal structure that houses the mezzanine for the sleeping area, connecting the domestic staircase in the entrance hall with the vertical space of the livingroom.

No items found.
No items found.
1
/
9